Parque Manuel de Vega, la zona de Illescas más demandada por nuestros clientes. Autopromoción de chalet unifamiliar de estilo moderno rústico, con perfecta ubicación dentro del municipio de Illescas, dispone alrededor con todos los servicios indispensables hoy en día, como Ayuntamiento, policía, Parques, tiendas, cafeterías, polideportivo y supermercados. Bien comunicada por la A42, 407, m50 a menos de 30 minutos de madrid y Toledo así como el Aeropuerto Madrid- barajas Adolfo Suarez
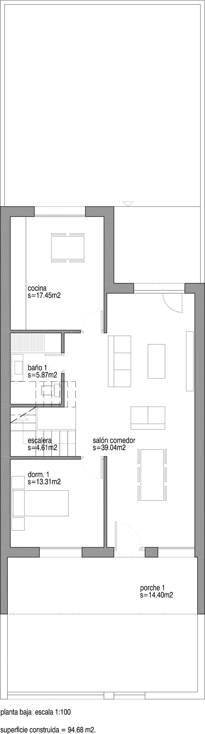
Las viviendas cuentan en planta baja con amplio salón con salida directa al jardín privado, cocina, un dormitorio y baño completo.
la planta 1ª consta de 3 amplios dormitorios y dos baños completos el dormitorio principal en suite con vestidor, y terraza de unos 9 m2
Aparcamiento con posibilidad para dos vehículo o mas, en superficie
Parcela de 270 m2 en esquina, Les damos la posibilidad de PERSONALIZAR la DISTRIBUCIÓN INTERIOR DE LAS VIVIENDAS, e ACABADOS INTERIORES, haciendo de cada casa una vivienda a su medida.
Posibilidad de poner Airotemria y sótano de 90 m2 aproximadamente. No incluidos en el precio.
«video y fotos anunciados adjunto en esta publicación es orientativo y de otras promociones ya vendidas» , no dude en contactarnos para informarte.
(imprescindible disponer del importe de la parcela ya incluido en el precio, impuestos no incluidos. )
Gestionamos la Financiación con las principales entidades bancarias colaboradoras
Property Features
- Chalet pareado
- Vendido


